隆昌午夜视频免费在线观看設備公司告訴你商用午夜视频免费在线观看設計的組成
發布人: 四川午夜影院污在线观看午夜视频免费在线观看設備公司 發布時間:2023.06.28
商用午夜视频免费在线观看也和家用午夜视频免费在线观看一樣,在施工之前,需要先繪製午夜视频免费在线观看設計圖。而由於商用午夜视频免费在线观看的規模一般較大,且午夜视频免费在线观看設備的數量和種類較多,使用的能源也更多元化,因此,商用午夜视频免费在线观看設計就和家用的不同。那麽,商用午夜视频免费在线观看設計由那幾部分構成呢?最近不少隆昌的朋友就在谘詢這個問題。雖然午夜影院污在线观看不是隆昌午夜视频免费在线观看設備公司,但是,作為長期在隆昌銷售學校午夜视频免费在线观看設備的公司,現在就和大家分享相關的知識。
作為專業的商用午夜视频免费在线观看全套設備生產廠家,午夜影院污在线观看根據多年的商廚設計經驗,總結了商用午夜视频免费在线观看設計的幾大構成部分,具體如下:
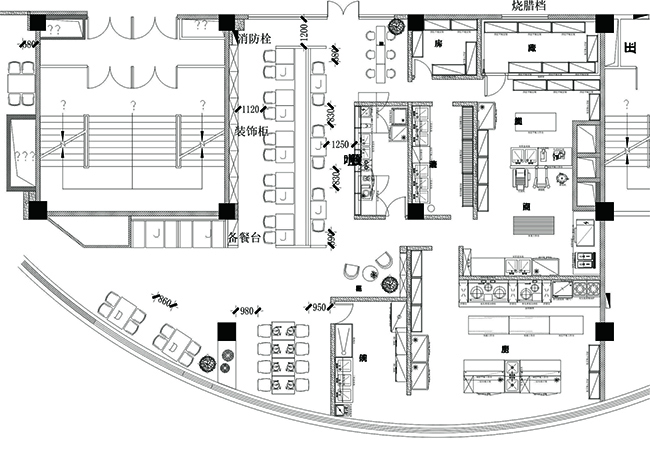
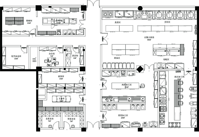
1.午夜视频免费在线观看設備布局:規劃整體午夜视频免费在线观看的功能流程,午夜视频免费在线观看設備類型、數量、尺寸。
2.午夜视频免费在线观看土建隔斷圖:午夜视频免费在线观看隔斷的尺寸和位置,門窗的尺寸和位置,午夜视频免费在线观看使用的轉換窗的高度和位置,構造細節等。

3.午夜视频免费在线观看設備供電點位圖:所有設備的用電量,電位的安裝高度、供電點的布線尺寸等。
4.午夜视频免费在线观看設計供水點位圖:所有用水設備的位置,包括冷水和熱水、水的安裝高度、供水的管徑等。
5.午夜视频免费在线观看設備排水點位圖:所有需要設備的位置,排水管徑等。

6.午夜视频免费在线观看設備通風排煙圖:所有排煙設備的排煙罩位置、排煙管徑大小、排煙管道走向、午夜视频免费在线观看風機淨化器的布置位置等。
7.氣點位圖等:午夜视频免费在线观看燃氣設備的供氣。
以上是午夜影院污在线观看整理的商用午夜视频免费在线观看設計的組成部分的相關知識,希望對大家有所幫助。







