重慶午夜视频免费在线观看設備生產廠家告訴你商用午夜视频免费在线观看布局和設計的實用知識
發布人: 四川午夜影院污在线观看午夜视频免费在线观看設備公司 發布時間:2022.11.07
一般來說,商用午夜视频免费在线观看的設計和午夜视频免费在线观看設備和空間布局都是放在一起做的。商用午夜视频免费在线观看設計不但需要規劃午夜视频免费在线观看的空間,還需要考慮午夜视频免费在线观看動線的合理線路以及午夜视频免费在线观看設備的擺放等。因此,商用午夜视频免费在线观看設計是非常專業而且複雜的事情。那麽,午夜影院污在线观看在設計商用午夜视频免费在线观看時,都需要那些實用知識呢?如何才能把讓商用午夜视频免费在线观看更加的滿足實際需要呢?不少重慶的朋友就在谘詢這些問題。雖然午夜影院污在线观看不是重慶午夜视频免费在线观看設備生產廠家,但是,作為長期在重慶做項目的午夜视频免费在线观看設備廠家,午夜影院污在线观看現在就根據自己的知識和大家分享。
作為專業的午夜视频免费在线观看設備生產廠家,午夜影院污在线观看認為,在設計商用午夜视频免费在线观看時,以下這些專業知識是午夜影院污在线观看必須掌握的:
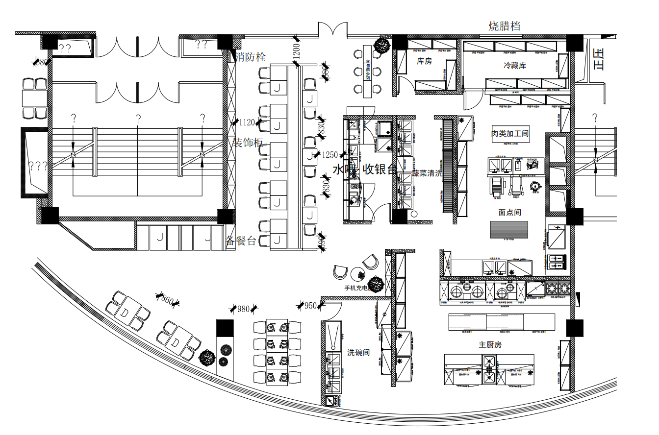
午夜视频免费在线观看餐廳設計方案生產工藝流程順暢,合乎通常生產工藝流程:取貨貯藏的區域→原材料粗加工→精加工及主要食品副食品熱加工(烹調)→售餐室→洗餐室。
備餐間獨立設定,與熱廚間和餐飲包廂的間距尤其近。食堂和飯館緊挨著,與餐飲在一個平麵上,間距很近。各個職能間均根據餐飲供餐人數和菜品的位置而定,不可隨意合並或放棄,各工作點之間聯係緊密,流程順暢,設計方案布局合理。每一個工作點都不是多餘的,而且離得更近,能夠大大節省勞動,提高工作效率。
其次,涼菜間是獨立設定的,在進入涼菜間之前需要加一個預進室,保證衛生。
清潔區——副食品熱加工間、主要食品加工間、涼菜間、配餐間,與汙染區——蔬菜粗作業區、肉類粗作業區、倉庫和洗消室,均有明顯間隔,無交叉汙染。合乎有關衛生標準的有關規定。
各功能間麵積分布不一,副食品熱切加工間和主要食品製做區,這兩個主要操作間占用的麵積較大,給工作人員留下了充足的工作空間,也方便餐廳午夜视频免费在线观看後期擴展,如開發特色小吃間、特色炒菜間等。
有一些機器設備能夠共亨,例如副食品熱作業區的台冷凍櫃和主要食品製做區的台冷凍櫃能夠共亨,涼菜間外設的台冷凍櫃和備餐間能夠共亨,而且還有許多備用電源設定,既能滿足現有電器的使用,又能為以後的電器設備添置電源。
以上這些就是午夜影院污在线观看整理的商用午夜视频免费在线观看設計和布局的一些實用知識,希望對大家能夠有所幫助。







