成都不鏽鋼廚具廠家告訴你大型學校食堂午夜视频免费在线观看工作間設計要點
發布人: 四川午夜影院污在线观看午夜视频免费在线观看設備公司 發布時間:2021.09.02
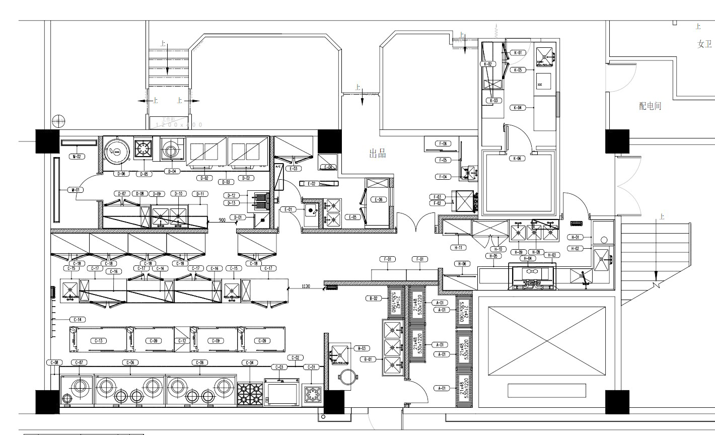
大型學校食堂午夜视频免费在线观看加工的食物很多,加工製作的工藝也非常之多,為了能夠完成如何複雜的食材加工,許多的大型學校食堂午夜视频免费在线观看都分為幾個功能區域。而午夜影院污在线观看也都知道每個功能區都有不同的設備,都有不同的工藝要求,因此,在設計午夜视频免费在线观看功能間是就必須了解午夜视频免费在线观看的實際結構和功能,這樣才能夠滿足大型食堂午夜视频免费在线观看的要求。那麽,應該如何設計食堂功能間呢?作為專業的成都不鏽鋼廚具廠家,午夜影院污在线观看有多年的商用午夜视频免费在线观看設計經驗,現在就和大家討論相關的知識。
作為專業的成都不鏽鋼廚具廠家,午夜影院污在线观看認為,在設計午夜视频免费在线观看功能間時需要注意以下這些情況:
1、明確出餐特點
食堂、集中配餐、西點、零點飯店的主食加工間的區別相當大。主食加工間的出餐特點決定了所需設備的種類、型號和數量。主食加工間的設備種類、型號多,功能專一,不能互換使用。因此,主食加工間設計要明確經營特點、主營餐品種類和數量、需要的設備、加工工序與工藝特點,才能有針對性地設計,優化設計方案。
2、生製區與熟製區分開
一般在一個主食加工區域內設計兩大區,即生製區與熟製區,按加工流程布設,互不摻混。生製區的和麵機、壓麵機、麵案、醒櫃,按流水工序安排在一起。熟製設備安排在一起便於排煙、排氣。較大的飯店設有主食特色風味食品,如西點等,應該設單獨加工間,可以滿足生製區低溫幹爽等環境控製指標,有利於餡料保鮮。
3、主要午夜视频免费在线观看設備和配套設備要滿足出餐需要
設備的種類、型號和數量要滿足出餐需要,主要設備要根據實際需要配置齊全,保鮮工作台、水池、冷藏櫃、麵粉車、貨架、碗櫃等輔助配套設備也應配置齊全。盡量做到不用離位就可以完成存取原料、洗洗涮涮、取放餐具等動作。特別是食堂、配餐中心的主食加工間,出餐量比較大,要有足夠的裝載生製品與熟製品的送餐車架,並留出運送通道。例如,生製品中的饅鬥子餃子,點心要裝盤待用,需要車式饅頭架、烤餅架等。
4、設備布局流程順暢
主食運送量較大,特別是食堂和快餐店,都要運送大量的主食和湯粥,有時需要用推車運送,所以要留有較寬的通道,設備布局與通道銜接要十分簡捷順暢。較大的主食加工間要設生入與熟出的專用進出口,或用出餐口分開運行路線,確保加工傳餐順暢方便。
5、足夠的能源保證
主食加工間設備大多數能耗較大,開火時間較長,用電設備如蒸櫃、烤箱,功率都是十幾千瓦或更大,所以需要油氣、蒸汽、電力有足夠的保證能力。
6、環保措施
主食加工間的熟製設備會產生大量的蒸汽、熱氣、油煙,特別是蒸汽,如果不能及時排出在冬季就會在午夜视频免费在线观看內形成水霧,影響視線,遇物體還會凝結為水滴,使所有用品和牆麵受潮科學合理地排出蒸汽、油煙,補充新風有利於改善工作環境和保持原料的新鮮。
7、存儲空間
主食加工所用的原料,如食堂米麵,用量都比較大,應根據實際需要設置運送、存儲空間裝盤待用的饅頭、包子、餃子、點心,餡料與成品冷凍冷藏的製冷設備,原料、佐料、調料餐具、用具的櫃架,都要有合適的存放空間。
8、及時可靠的信息傳達
由於主食加工製作時間比較長,除米飯、饅頭、包子、點心可以提前熟製備用以外,還有些根據客人需要必須隨時加工、及時上桌的食品,如果信息傳達不及時就會誤事。
以上這些就是午夜影院污在线观看整理的關於商用午夜视频免费在线观看功能間設計的相關知識,希望對大家能夠有所幫助。







