你的瀏覽器已禁用javascript,請啟用javascript,否則網頁將非正常運行!


  1. 午夜影院污在线观看,午夜视频免费在线观看,午夜成人做爱视频,成人午夜视频在线观看免费

    成都商用午夜视频免费在线观看工程公司告訴你醫院午夜视频免费在线观看設計細節

    發布人: 四川優百特午夜视频免费在线观看設備公司 發布時間:2020.04.09

      醫院是給病人治病的地方,所以醫院午夜视频免费在线观看承擔著為醫生和病人提供餐飲服務的任務。但是,由於醫院是特殊的場所,所以,醫院的午夜视频免费在线观看在設計上麵也有其特殊性。那麽,在設計醫院食堂午夜视频免费在线观看時,應該考慮哪些因素呢?又應該配置哪些設備呢?作為專業的成都商用午夜视频免费在线观看工程公司,現在午夜影院污在线观看就和大家分享相關的知識。


      作為成都商用午夜视频免费在线观看工程公司,午夜影院污在线观看認為要設計醫院午夜视频免费在线观看可以考慮以下幾個方麵:


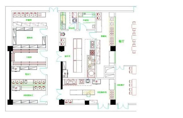
      一、醫院食堂午夜视频免费在线观看設計方案

      在設計醫院食堂午夜视频免费在线观看設計圖時,應充分考慮以下幾個方麵:隻有在充分考慮設計方案的情況下,才能使後期的醫院食堂暢通,隻有醫生和病人才能讓醫生和病人出院。並且為患者的家人提供更好的膳食。


      1、通風性:一般設計排氣量為油煙排風設備,按80%的排風設計補充風量。此外,還要考慮合理的房間通風。隻有醫院食堂通風良好,才能讓醫院食堂廚師發揮得更好。


      2、午夜视频免费在线观看地板:午夜视频免费在线观看地板必須使用防滑磚,在選擇新穎實用的防滑磚之前,使用紅鋼磚仍然是一個有效的舉措。


      3、用水明溝:午夜视频免费在线观看排水溝不應太淺,明渠表麵應平整,高低無差別,做好露溝地麵下的有機連接,做好排水溝末端防老鼠的工作。


      4、午夜视频免费在线观看燈光:午夜视频免费在线观看燈光要實用,熱菜加工要用足夠的光來處理,以把握菜肴色澤,案板切配要有明亮的燈光,為了有效防止刀傷和追求精細的刀工,出菜找荷要有充足的燈光,減少混入餐廳和流入餐廳的碎片數量。


      二、醫院食堂午夜视频免费在线观看設計功能間的介紹


      粗加工區:為滿足衛生要求,對原料分別進行清洗和切割,不得與午夜视频免费在线观看其他區域交叉。

          

      操作間:操作間是最集中的地方,小炒、蒸菜、燉菜、炸製類菜品、湯類均在此間製作。為此,其主要配置為用於炒菜的烹調範圍、用於存儲原料的冰箱、以及用於存儲調味盤的桌櫃。由於來訪病人的用餐時間不統一,又都以粥類等流食為主要食物,故此間設置有煲仔爐,方便在做份量較少的食物時使用。


      回民操作間:醫院病人隨處可見,所以午夜影院污在线观看需要考慮少數民族的飲食習慣,所以設置回民操作間,以滿足少數病人對食物材料的特殊需求。


      三、醫院食堂午夜视频免费在线观看設計規範


      醫院食堂對場所要求非常嚴格,因為醫院是一個非常幹淨的場所,衛生標準高於其他地方。


      1、不應在幹燥地形、給排水條件和供電地區選擇汙染易發地區。


      2、應遠離排泄物、汙水槽、垃圾站。


      3、醫院附近不得有有害氣體、放射性物質和其他擴散汙染源。


      以上幾點就是午夜影院污在线观看整理的關於醫院午夜视频免费在线观看設計的相關知識,希望能夠對大家啊有用。


      本文內容由四川午夜影院污在线观看午夜视频免费在线观看設備公司提供,部分圖片和文字或來自網絡,如涉及知識產權請於成都午夜视频免费在线观看設備公司午夜影院污在线观看聯係。如需轉載本文,請與有商用午夜视频免费在线观看工程經驗的老牌午夜视频免费在线观看設備廠午夜影院污在线观看網站管理員聯係。若需獲取更多商用午夜视频免费在线观看設備、酒店午夜视频免费在线观看設備、不鏽鋼廚具產品信息,歡迎各位來電來函,午夜影院污在线观看將與大家共同分享行業資訊。






    分享這個產品

    產品展示
    成功成人午夜视频在线观看免费
    
    網站地圖